|
|
|
|
Projets
|
|
|
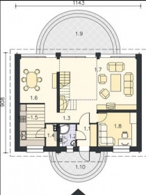
LMP 138 SHON: 117.3 m2 SHOB: 119,1 m2
 
|
|
|
RDC 77,3 m2
|
|
|
|
|
|
1.1 Entrée
|
|
3,6 m2
|
|
|
1.2 W.C., Chaufferie
|
|
2,9 m2
|
|
|
1.3 Communication
|
|
4,0 m2
|
|
|
1.4 Cellier
|
|
1,8 m2
|
|
|
1.5 Cuisine
|
|
10,7 m2
|
|
|
1.6 Salle
|
|
13,2 m2
|
|
|
1.7 Séjour
|
|
30,4 m2
|
|
|
1.8 Chambre
|
|
10,7 m2
|
|
|
|
|
|
|
|
|
|
|
|
|
|
|
|
|
|
|
|
|
|
|
|
|
|
|
|
|
|
|
|
|
|
|
|
|
|
|
|
|
|
|
|
|
|
|
|
|
|
|
|
Etage 41,8 m2
|
|
|
|
|
|
2.1 Communication
|
|
9,2 m2 (14,3 m2)
|
|
|
2.2 Couloir
|
|
14,8 m2 (17,7 m2)
|
|
|
2.3 Garde-robe
|
|
1,4 m2 (4,3 m2)
|
|
|
2.4 Chambre
|
|
12,1 m2 (15,0 m2)
|
|
|
2.5 W.C.
|
|
4,3 m2 (7,2 m2)
|
|
|
|
|
|
|
|
|
|
|
|
|
|
|
|
|
|
|
|
|
|
|
|
|
|
|
|
|
Description détaillée
|
|
|
|
|
|
|