|
|
|
|
Projets
|
|
|
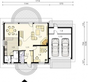
P180a SHON: 176.3 m2 SHOB: 222 m2
 
|
|
|
RDC 132,6 m2
|
|
|
|
|
|
1.1 Entrée
|
|
5,9 m2
|
|
|
1.2 W.C.
|
|
3,3 m2
|
|
|
1.3 Laverie, Chaufferie
|
|
4,1 m2
|
|
|
1.4 Cellier
|
|
2,4 m2
|
|
|
1.5 Cuisine
|
|
13,2 m2
|
|
|
1.6 Salle
|
|
11,2 m2
|
|
|
1.7 Séjour
|
|
35,7 m2
|
|
|
1.8 Chambre
|
|
13,9 m2
|
|
|
1.9 Débarrasse
|
|
7,5 m2
|
|
|
1.10 Garage
|
|
31,7 m2
|
|
|
1.11 Communication
|
|
3,7 m2
|
|
|
|
|
|
|
|
|
|
|
|
|
|
|
|
|
|
|
|
|
|
|
|
|
|
|
|
|
|
|
|
|
|
|
|
|
Etage 89,4 m2
|
|
|
|
|
|
2.1 Communication
|
|
7,4 m2
|
|
|
2.2 Chambre
|
|
18,9 m2 (22,3 m2)
|
|
|
2.3 Chambre
|
|
12,8 m2 (16,2 m2)
|
|
|
2.4 Chambre
|
|
12,7 m2 (16,1 m2)
|
|
|
2.5 W.C.
|
|
8,3 m2 (9,0 m2)
|
|
|
2.6 W.C.
|
|
3,7 m2 (4,4 m2)
|
|
|
2.7 Garderoba
|
|
3,5 m2 (5,2 m2)
|
|
|
2.8 Chambre
|
|
22,1 m2 (39,6 m2)
|
|
|
|
|
|
|
|
|
|
|
|
|
|
Description détaillée
|
|
|
|
|
|
|