|
|
|
|
Projets
|
|
|
P126 SHON: 124.2 m2 SHOB: 143.9 m2
 
|
|
|
RDC 107,3 m2
|
|
|
|
|
|
1.1 Entrée
|
|
7,4 m2
|
|
|
1.2 W.C, Chaufferie
|
|
2,8 m2
|
|
|
1.3 Cuisine
|
|
10,1 m2
|
|
|
1.4 Séjour
|
|
33,7 m2
|
|
|
1.5 Communication
|
|
5,9 m2
|
|
|
1.6 Chambre
|
|
11,9 m2
|
|
|
1.7 Chambre
|
|
11,3 m2
|
|
|
1.8 W.C.
|
|
4,5 m2
|
|
|
1.9 Garage
|
|
19,7 m2
|
|
|
|
|
|
|
|
|
|
|
|
|
|
|
|
|
|
|
|
|
|
|
|
|
|
|
|
|
|
|
|
|
|
|
|
|
|
|
|
|
|
|
|
|
|
|
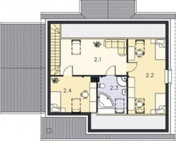
poddasze 36,6 m2
|
|
|
|
|
|
2.1 Couloir
|
|
10,8 m2 (9,0 m2)
|
|
|
2.2 Chambre
|
|
13,0 m2 (22,4 m2)
|
|
|
2.3 W.C.
|
|
5,0 m2 (8,6 m2)
|
|
|
2.4 Chambre
|
|
7,8 m2 (12,8 m2)
|
|
|
|
|
|
|
|
|
|
|
|
|
|
|
|
|
|
|
|
|
|
|
|
|
|
|
|
|
|
|
|
|
|
Description détaillée
|
|
|
|
|
|
|