|
|
|
|
Projets
|
|
|
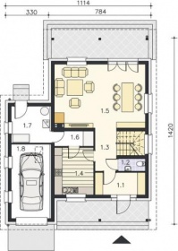
P60 SHON: 106 m2 SHOB: 141.5 m2
 
|
|
|
RDC 88,6 m2
|
|
|
|
|
|
1.1 Entrée
|
|
6,6 m2
|
|
|
1.2 W.C.
|
|
2,0 m2
|
|
|
1.3 Communication
|
|
7,1 m2
|
|
|
1.4 Cuisine
|
|
10,8 m2
|
|
|
1.5 Séjour
|
|
33,6 m2
|
|
|
1.6 Cellier
|
|
3,5 m2
|
|
|
1.7 Débarrasse, Chaufferie
|
|
8,3 m2
|
|
|
1.8 Garage
|
|
16,7 m2
|
|
|
|
|
|
|
|
|
|
|
|
|
|
|
|
|
|
|
|
|
|
|
|
|
|
|
|
|
|
|
|
|
|
|
|
|
|
|
|
|
|
|
|
|
|
|
|
|
|
|
|
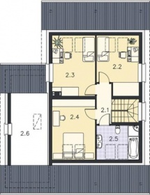
Etage 52,9 m2
|
|
|
|
|
|
2.1 Communication
|
|
5,9 m2
|
|
|
2.2 Chambre
|
|
10,7 m2 (15,1 m2)
|
|
|
2.3 Chambre
|
|
12,0 m2 (16,5 m2)
|
|
|
2.4 Chambre
|
|
12,3 m2 (16,8 m2)
|
|
|
2.5 W.C.
|
|
5,0 m2 (9,4 m2)
|
|
|
2.6 Débarrasse
|
|
7,0 m2 (23,0 m2)
|
|
|
|
|
|
|
|
|
|
|
|
|
|
|
|
|
|
|
|
|
|
|
|
Description détaillée
|
|
|
|
|
|
|